Other
22 Goodmark Pl, Toronto

Commercial for lease Commercial for lease

22 Goodmark Pl

For LeaseWest Humber-Clairville, M9W 6R2
$4.1K Month

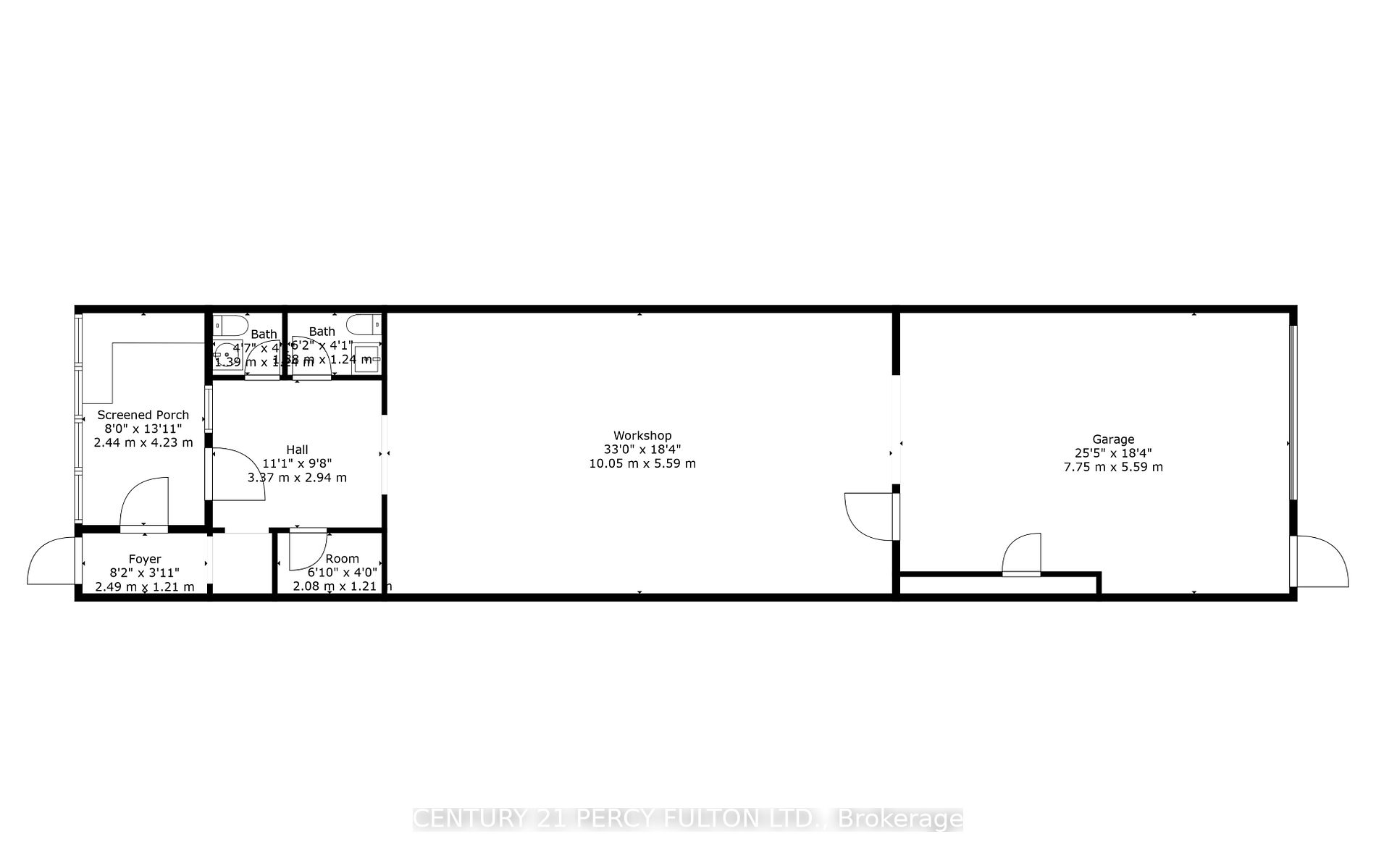
Rarely offered industrial unit in North Etobicoke minutes from the highway is available! Convenient location with easy access to highway 407, 427, 27. Recently purchased gas furnace. Multiple parking spots. Many end uses permitted. Oversized 10 foot wide by 12 foot high drive in door.

Features

  • Business Type
    Category: Other
  • Commercial Total Area
    Total Area: 1641.00 sqft
  • Commercial Parking Types
    Parking Types: None
  • Commercial Ages
    Property Age: 31-50
  • Commercial Ceiling Heights
    Clear Heights: 14
  • Commercial Voltage
    Electric Voltage: 600
  • Vehicle Capacity
    Vehicle Capacity: 1
  • Grade Level
    Grade Level: 1

Details

  • Commercial Zoning
    Zoning: Central Business District Commercial
  • MLS
    W11899821
  • Listing contracted with: CENTURY 21 PERCY FULTON LTD.

Location