Description
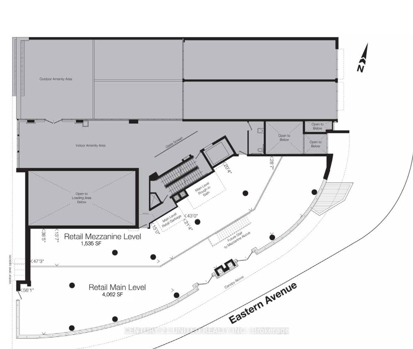
This 5,597 sq. ft. streetfront commercial condo unit features excellent corner exposure with over 50 feet of frontage and includes one surface parking spot. This unit consists of a ground floor and a fully constructed mezzanine with 20-foot ceilings. Located in the vibrant areas of the Distillery District, Canary District, and West Don Lands. The unit is minutes from King Street East and the 504 streetcar, with easy access to the DVP and Gardiner Expressway. It is part of Trinity Lofts, an eight-story residential development by Streetcar Developments and Dream, completed in 2013. This location is ideal for businesses seeking to thrive in a continuously evolving area of downtown Toronto. Zoning allows for many permitted uses. Current owner/user is moving. Vacant possession will be available. Seller will consider leasing as well. **EXTRAS** Condo fees include P1-03 Parking spot Condo fees include P1-03 Parking spot
Features
-
Category:
-
Total Area: 5,597 sqft
- Retail Area: 5,597 sqft
- Parking Types: Covered
- Property Age: 6-15
Details
- Zoning: Commercial
- Tax: $ 39,273
- Maintenance: $ 1,862
- Alcohol Allowed: N
- C8266440
- Listing contracted with: CENTURY 21 UNITED REALTY INC.